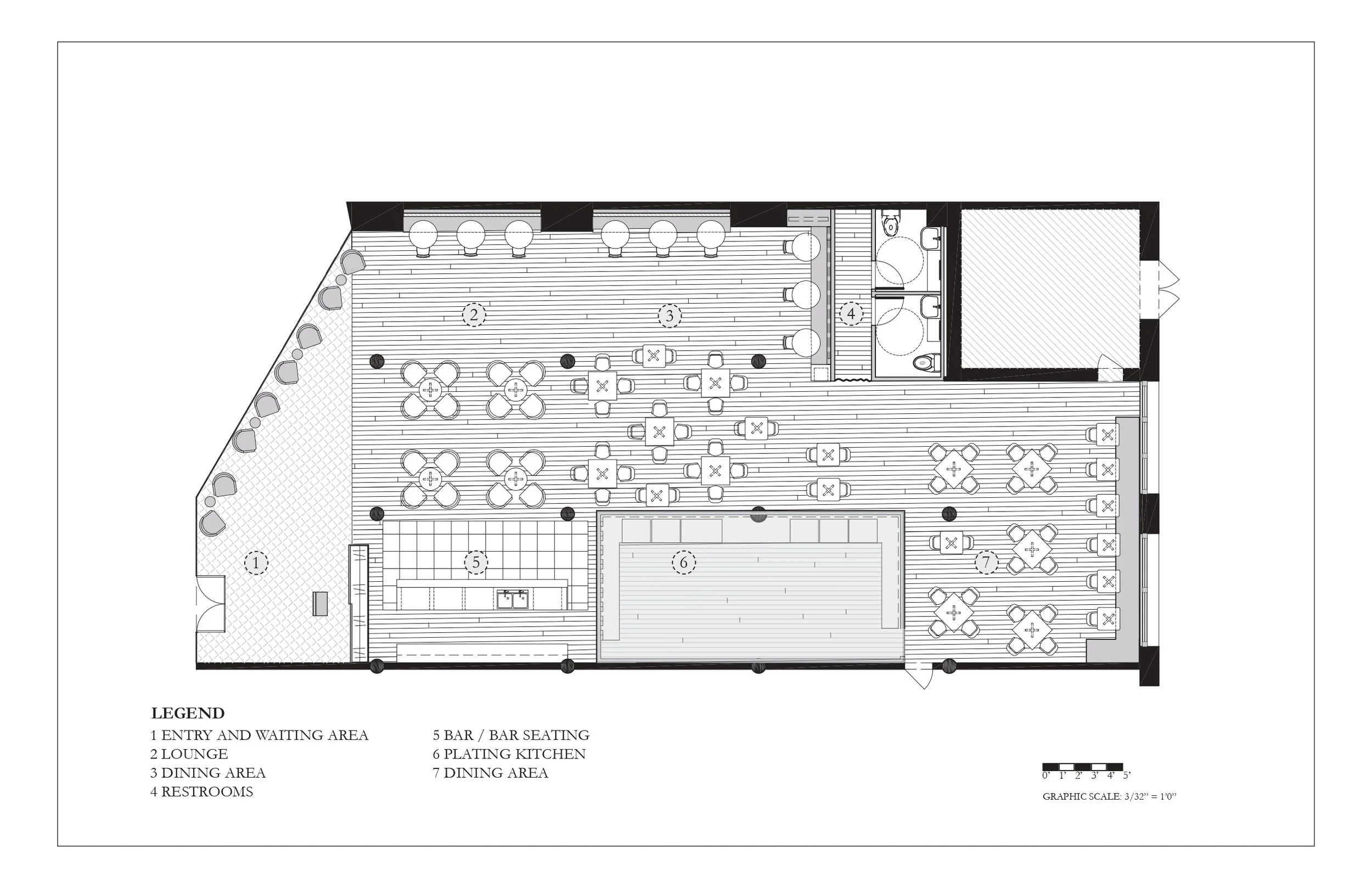
This is the floor plan for the restaurant project also featured on this site, the result of several space planning iterations at the beginning of the project.

AutoCAD

OMBRA FLOOR PLAN

Previous
Previous

Revit Project: Lord Fabrik Showroom

Next
Next

Primary Bath